- Home
- Community
- Transportation
- Downtown Metra Station Renovation
Downtown Metra Station Renovation
October 17, 2018
Efraim Carlson has begun work to renovate the downtown Metra Station.
October 5, 2018
Village to Begin Renovation of Downtown Metra Train Station
The Village’s contractor Ephraim Carlson and Son will begin construction to renovate the downtown Metra train station during the week of October 8. The project will include partial demolition of the existing structure along with improvements such as ADA compliant restrooms and upgrades to the existing commuter waiting room, main entrance and ticket agent room. During construction, a temporary ticket trailer will be available for commuter use. In addition, twenty existing Metra permit holder parking lot spaces will be temporarily relocated to the north end of the American Legion parking lot located to the south of the Metra train station parking lot. The project is anticipated to be completed during the spring of 2019. Questions regarding the project should be directed to the Village’s engineering office at 847-918-2100. For project information and updates visit www.libertyville.com/metrarenovation.
Village to Begin Renovation of Downtown Metra Train Station
The Village’s contractor Ephraim Carlson and Son will begin construction to renovate the downtown Metra train station during the week of October 8. The project will include partial demolition of the existing structure along with improvements such as ADA compliant restrooms and upgrades to the existing commuter waiting room, main entrance and ticket agent room. During construction, a temporary ticket trailer will be available for commuter use. In addition, twenty existing Metra permit holder parking lot spaces will be temporarily relocated to the north end of the American Legion parking lot located to the south of the Metra train station parking lot. The project is anticipated to be completed during the spring of 2019. Questions regarding the project should be directed to the Village’s engineering office at 847-918-2100. For project information and updates visit www.libertyville.com/metrarenovation.
September 26, 2018
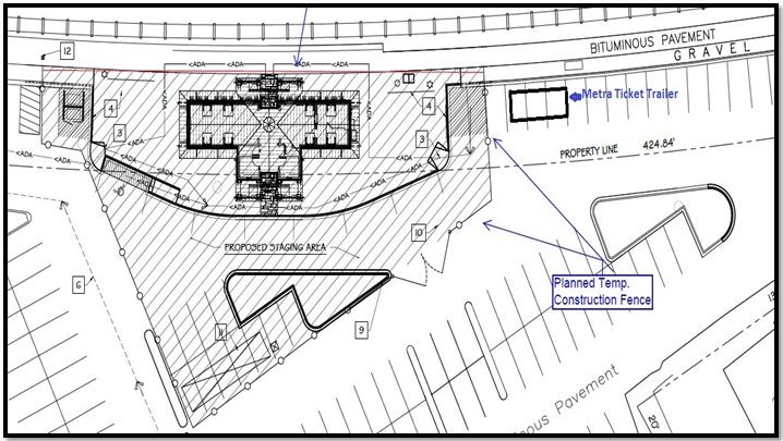
The contractor has informed the Village that the installation of the construction fencing around the perimeter of the Metra Station work site will begin Thursday, October 4th. This will restrict access to the building to authorized individuals only. This fence will surround the area in the shaded region of the diagram below. All Metra ticketing and other Metra related matters will move to the temporary ticket trailer just east of the building, also shown in the diagram below.
As previously mentioned, the twenty (20) permit parking spaces that will be displaced due to the station renovation will be moved to north end of the American Legion Lot and will be open for use starting Thursday, October 4th. The permit parking spaces relocated to the American Legion Lot will have signs posted designating these spots as commuter permit parking Monday to Friday 5:00 am – 5:00 pm.
The contractor has informed the Village that the installation of the construction fencing around the perimeter of the Metra Station work site will begin Thursday, October 4th. This will restrict access to the building to authorized individuals only. This fence will surround the area in the shaded region of the diagram below. All Metra ticketing and other Metra related matters will move to the temporary ticket trailer just east of the building, also shown in the diagram below.
As previously mentioned, the twenty (20) permit parking spaces that will be displaced due to the station renovation will be moved to north end of the American Legion Lot and will be open for use starting Thursday, October 4th. The permit parking spaces relocated to the American Legion Lot will have signs posted designating these spots as commuter permit parking Monday to Friday 5:00 am – 5:00 pm.
September 5, 2018
As previously mentioned, the Village of Libertyville will be overseeing the renovation of the downtown Metra station building. Twenty commuter permit parking spaces will be displaced during the renovation by the necessary staging areas. The 20 permit parking spaces will be temporarily relocated to the north end of the American Legion Lot off Lake Street. The 20 permit parking spaces relocated to the American Legion Lot will have signs posted designating these spots as commuter permit parking Monday to Friday 5:00 am – 5:00 pm. The 20 American Legion Lot permit parking spaces and the recommended walking route to the Metra Station from the American Legion Lot are shown on the map below.
The contractor has been given the notice to proceed for the project. The staging area will soon be fenced off. Once started, the project is expected to take 6-months to complete.
As previously mentioned, the Village of Libertyville will be overseeing the renovation of the downtown Metra station building. Twenty commuter permit parking spaces will be displaced during the renovation by the necessary staging areas. The 20 permit parking spaces will be temporarily relocated to the north end of the American Legion Lot off Lake Street. The 20 permit parking spaces relocated to the American Legion Lot will have signs posted designating these spots as commuter permit parking Monday to Friday 5:00 am – 5:00 pm. The 20 American Legion Lot permit parking spaces and the recommended walking route to the Metra Station from the American Legion Lot are shown on the map below.
The contractor has been given the notice to proceed for the project. The staging area will soon be fenced off. Once started, the project is expected to take 6-months to complete.
August 21, 2018
The Village of Libertyville will be overseeing the renovation of the downtown Metra station building. The contractor for the project will use Newberry parking lot for their employees. A follow up notice will be provided once the start of construction has been determined. Once started, the project is expected to take 6-months to complete. The ten spaces outlined in yellow will be designated “Contractor Parking Only” Monday – Friday 5:00 am to 5:00 pm.
The Village of Libertyville will be overseeing the renovation of the downtown Metra station building. The contractor for the project will use Newberry parking lot for their employees. A follow up notice will be provided once the start of construction has been determined. Once started, the project is expected to take 6-months to complete. The ten spaces outlined in yellow will be designated “Contractor Parking Only” Monday – Friday 5:00 am to 5:00 pm.
August 21, 2018
The Village is overseeing the construction of additions and alterations to the existing Metra Train Station in Libertyville, Illinois. Work will consist of partial demolition of the existing structure and construction of new improvements including: Covered platform area, roof structure and covered perimeter walkway, covered bike racks, ADA compliant restrooms, renovation of the existing commuter waiting room, main entrance & ticket agent room and installation of utilities. During the construction, a temporary ticket trailer will be provided for commuters. The contractor for the project is Ephraim Carlson & Son. Twenty Metra permit holder parking spaces will be displaced and temporarily moved to the north end of the Legion Lot. The Village will hang signs denoting these Legion Lot parking spots as Commuter Parking Monday to Friday 5:00 am - 5:00 pm.
On the map to the right, the yellow rectangle shows the 20 Legion Lots permit parking spaces and the red lines shows the walking route to the Metra Station from the Legion Lot. A follow up notice will be provided once the start of construction has been determined. Once started, the project is expected to take 6-months to complete.
The Village is overseeing the construction of additions and alterations to the existing Metra Train Station in Libertyville, Illinois. Work will consist of partial demolition of the existing structure and construction of new improvements including: Covered platform area, roof structure and covered perimeter walkway, covered bike racks, ADA compliant restrooms, renovation of the existing commuter waiting room, main entrance & ticket agent room and installation of utilities. During the construction, a temporary ticket trailer will be provided for commuters. The contractor for the project is Ephraim Carlson & Son. Twenty Metra permit holder parking spaces will be displaced and temporarily moved to the north end of the Legion Lot. The Village will hang signs denoting these Legion Lot parking spots as Commuter Parking Monday to Friday 5:00 am - 5:00 pm.
On the map to the right, the yellow rectangle shows the 20 Legion Lots permit parking spaces and the red lines shows the walking route to the Metra Station from the Legion Lot. A follow up notice will be provided once the start of construction has been determined. Once started, the project is expected to take 6-months to complete.